fbpx
UNA CASA JUNTO AL MAR

Reforma de vivienda junto al mar de estilo moderno mediterráneo

Cuando tienes el mar, está todo hecho.

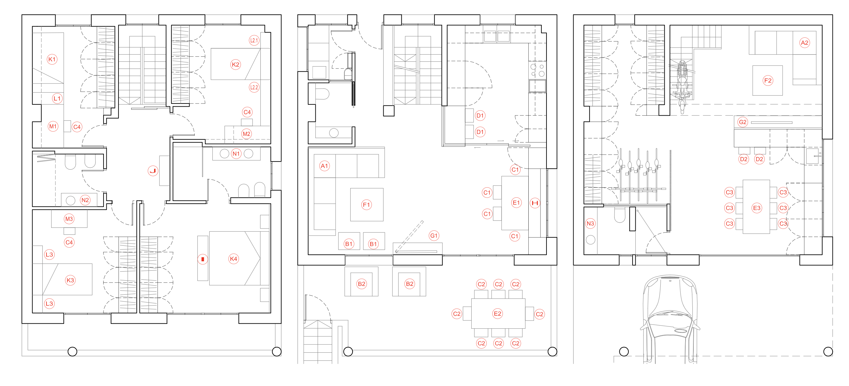
Salón, comedor, cocina y entrada, se convierten en un espacio unificado al servicio de la nueva funcionalidad de una familia actual y al servicio de las vistas al mar, imperturbable.

En este nuevo espacio, los materiales y colores utilizados, evocan la calidez del espacio tradicional mediterráneo, y se actualizan a un futuro atemporal.

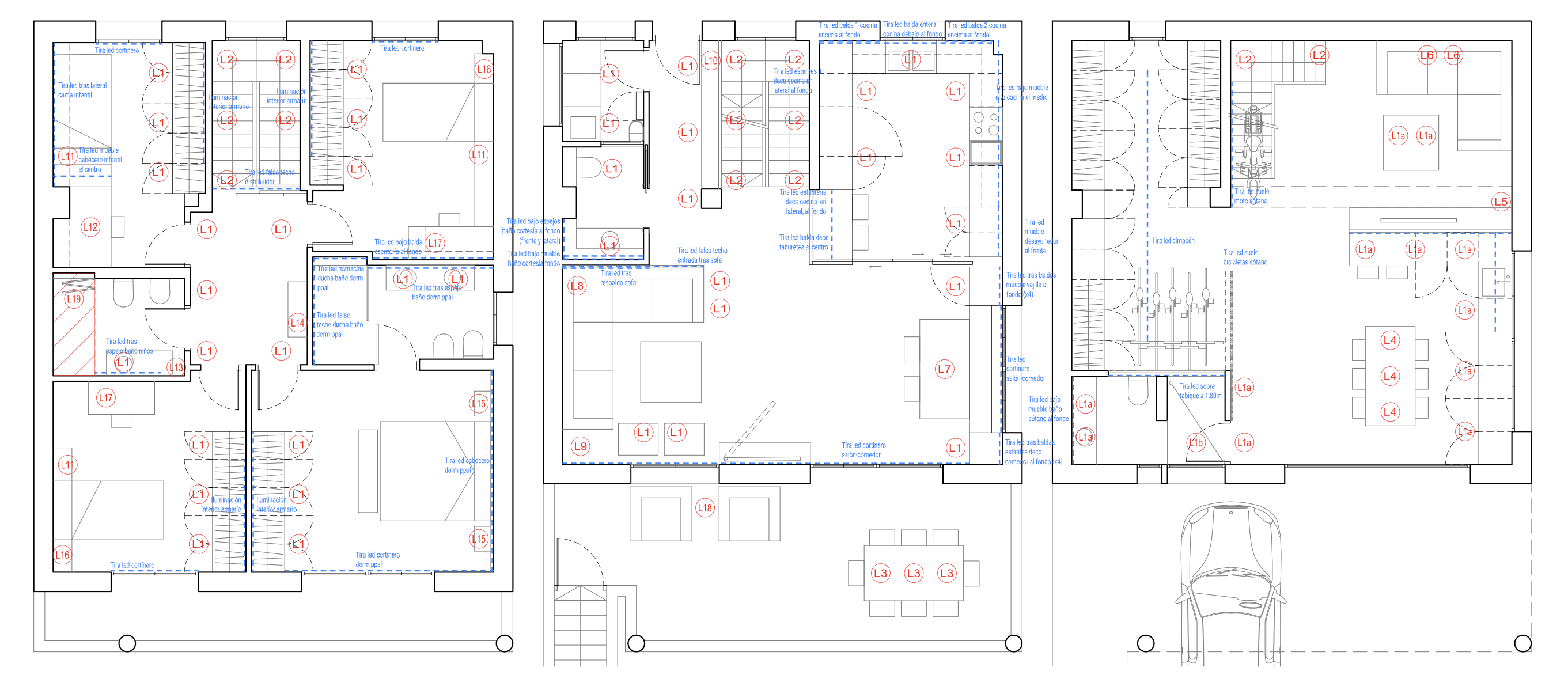
La escalera, se transforma y pasa de ser una pesada losa de hormigón a una ligera alfombra de chapa plegada que parece volar a través de sus tres alturas.

El recibidor presenta sus credenciales con una celosía-barandilla formada por una delicada estructura metálica lacada en blanco que adorna el espacio y protege de la escalera.

Do you have a project? We listen you