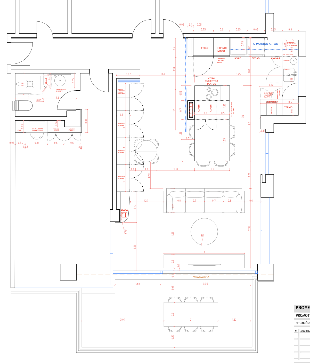
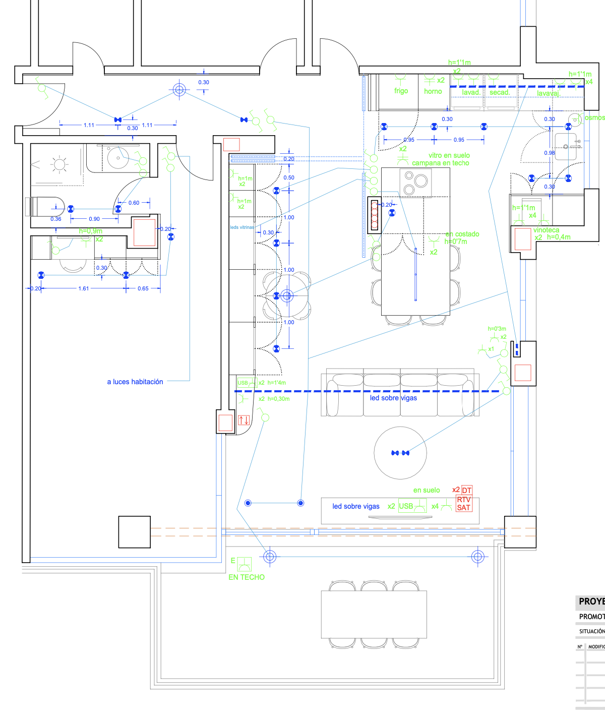
La idea principal de esta reforma es ampliar la sensación visual del espacio principal de la casa, formado por salón, comedor, cocina y terraza.
Para conseguirlo se eliminan todos los muros existentes, creando un único espacio. Se elige el mobiliario, la iluminación y la decoración adecuada, para generar un ambiente cálido y acogedor.