fbpx
REFORMA JUNTO A LA PLAYA

Reforma de vivienda junto al mar de estilo moderno mediterráneo realizada con materiales clásicos

La casa en la playa se convierte en un oasis para retirarse el fin de semana o en vacaciones, y desconectar del mundo.

Todas las comodidades posibles en espacios controlados. Se unen entre ellos y generan diferentes ambientes donde poder convivir sin interferencias. Privacidad y funcionalidad a partes iguales.

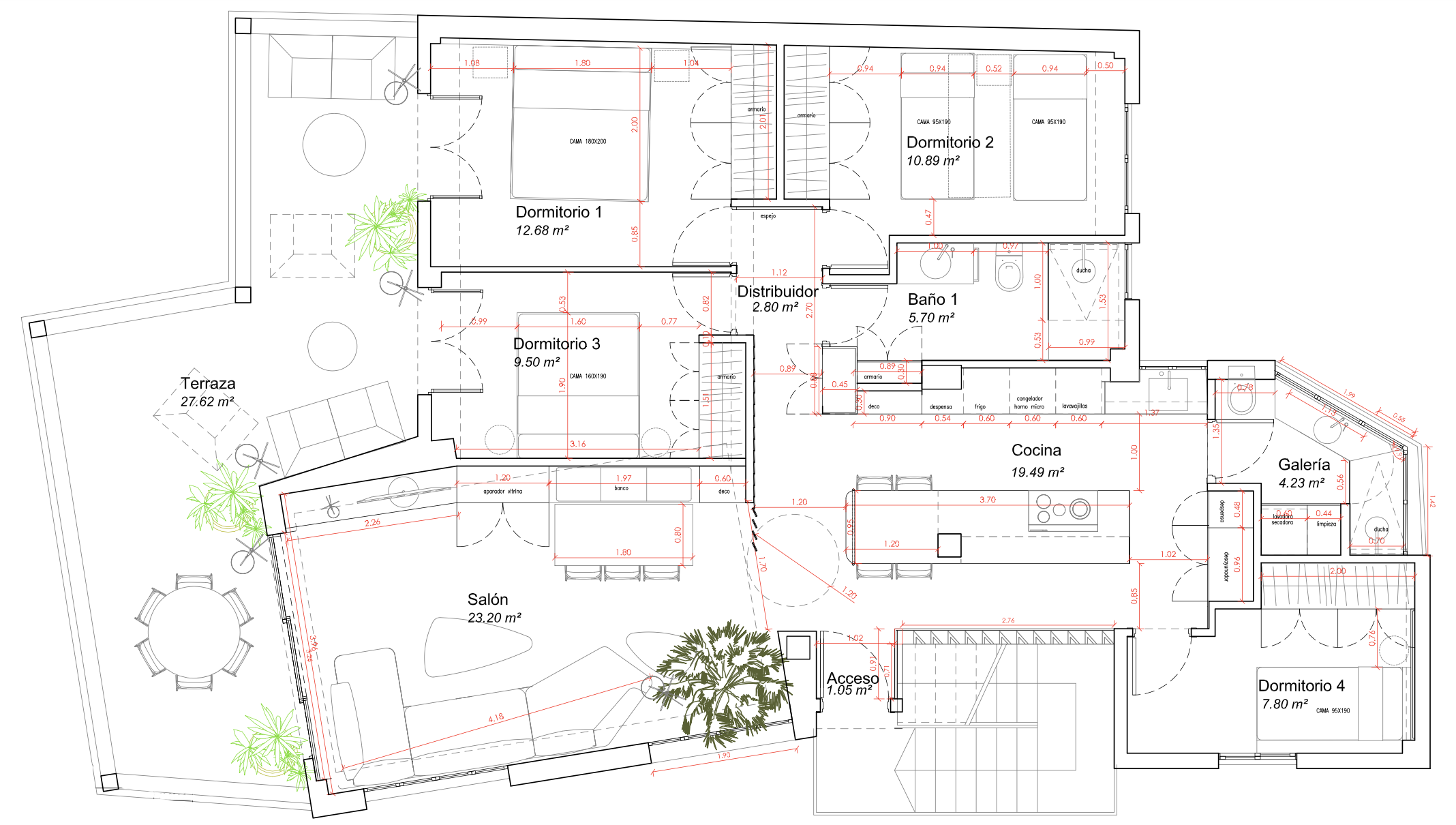
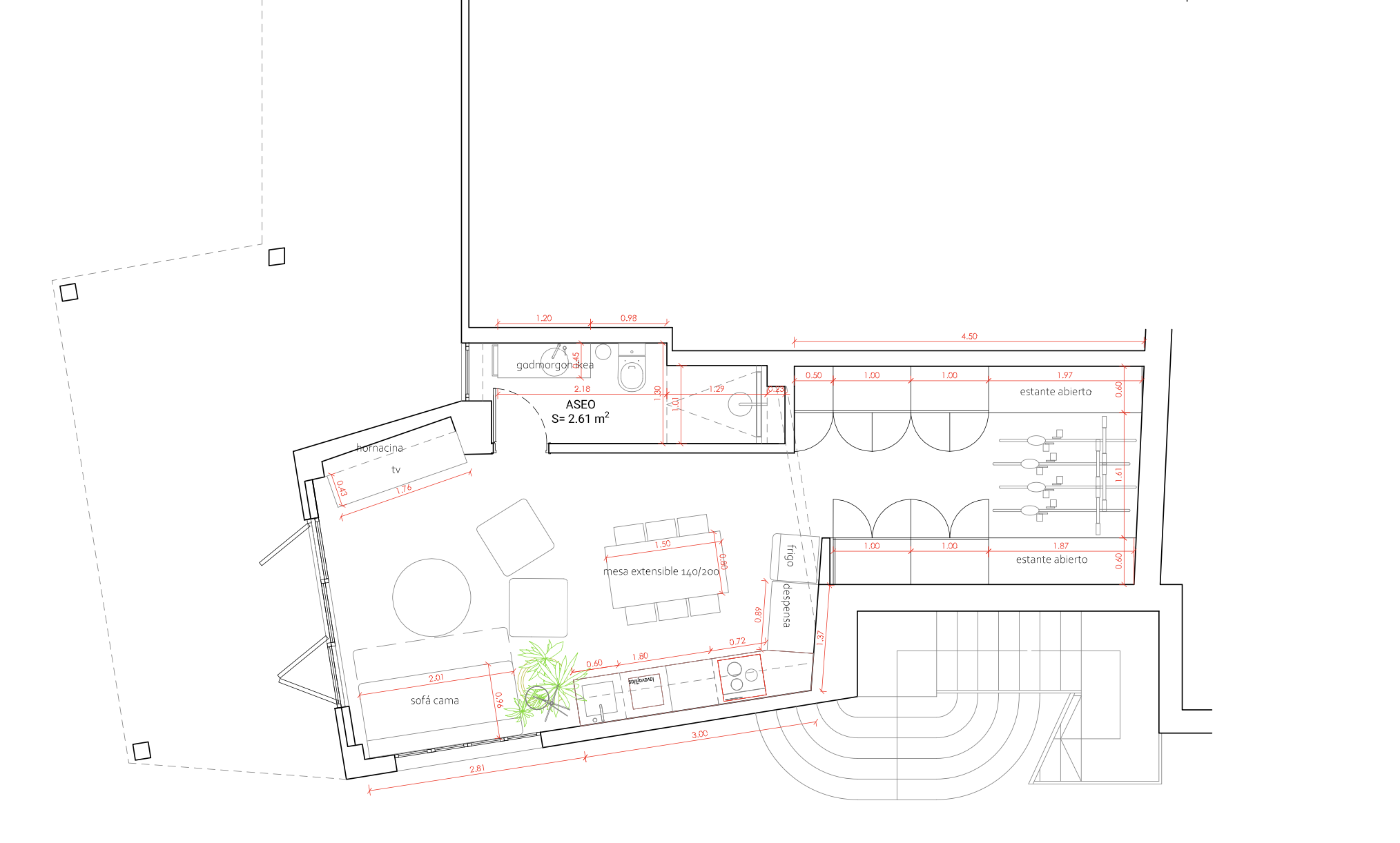
Una nueva distribución. Se incorpora la cocina a la zona de comedor salón para ofrecer las vistas del mediterráneo a un espacio tan servicial como la tradicional cocina, de tal forma que pasa a ser una estancia funcional y a la vez vividera, con una zona de isla para disfrutar, acompañar y compartir.
El estilo no puede ser otro que el de una casa mediterránea recurriendo a las tradicionales cerámicas decoradas con blancos y azules. Maderas de roble con un tinte claro para tener la frescura de la madera recién cortada, y un pavimento porcelanico, con tintes claros de arena y piedra que nos ilumina la vista y acompaña en todo momento al afortunado veraneante.

La estética al servicio de la función y de la percepción. Generar mejor calidad de vida gracias al confort visual y a la adecuada distribución y conexión entre las diferentes zonas.

El aire, el mar, los materiales elegidos y sus colores y texturas deben ser parte del lugar.

Do you have a project? We listen you