fbpx
REFORMA EN EL CENTRO

Reforma de vivienda de estilo moderno realizada con materiales actuales

Una vivienda con una ubicación inmejorable y muchas ventanas a la calle y al sol. Una distribución antigua y un mobiliario ya pasado de moda.

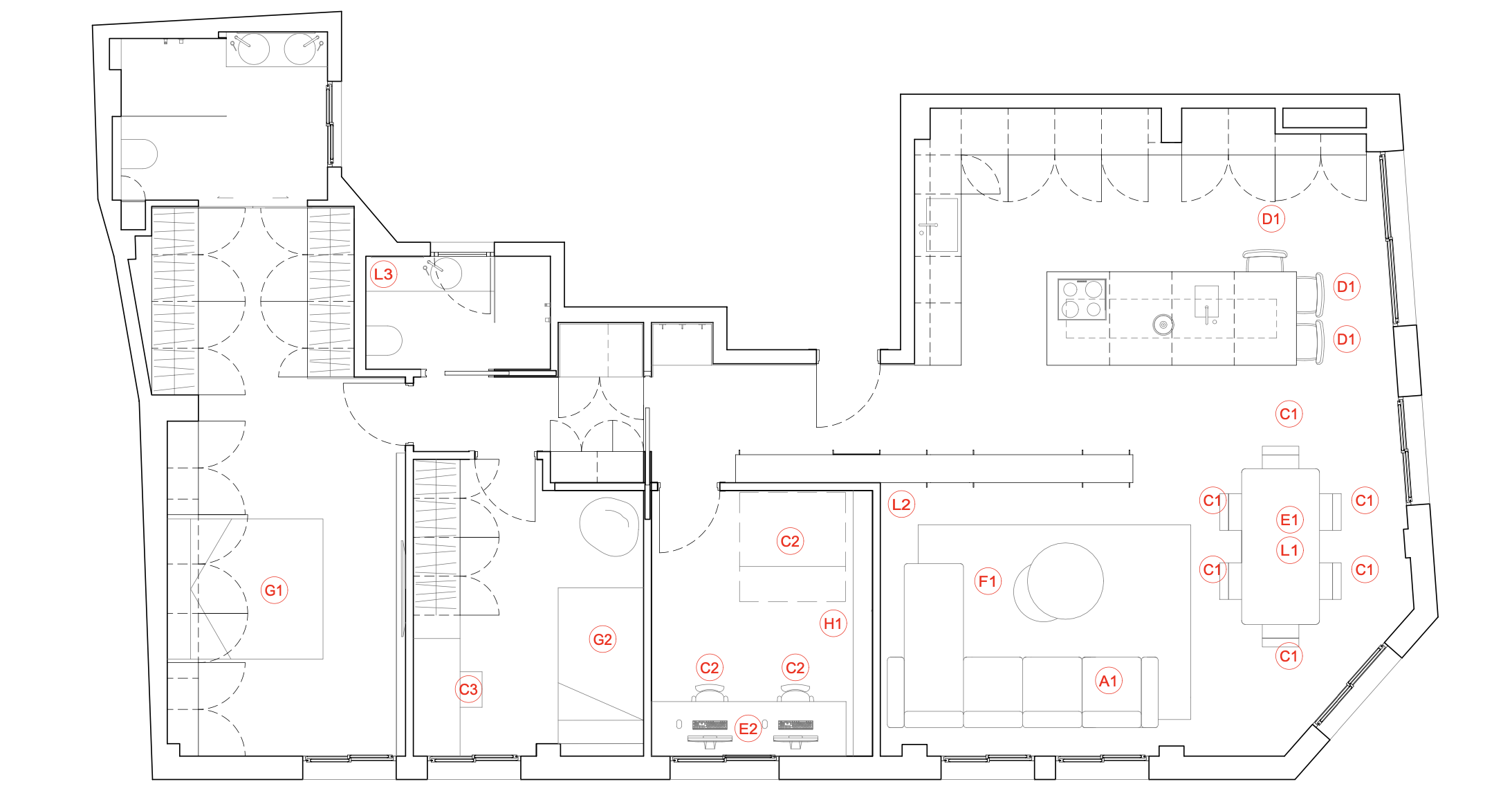
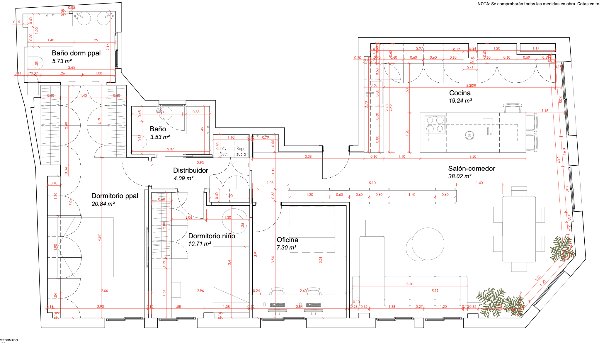
Un cambio radical. Se redistribuye toda la vivienda, se diseña una gran cocina que disfrute de la luz natural existente, junto a un gran salón, biblioteca, zona de trabajo, y se coloca un mobiliario modernamente neutro y atemporal

¿Como convertir un largo y tortuoso pasillo que recorre toda la vivienda en un simple distribuidor de acceso a la zona de noche, de un plumazo? Con un elemento separador visualmente permeable, una gran estantería de madera y metal, que oculta visualmente la entrada a la casa, que separa, conecta y organiza el espacio a su alrededor, y que te da la bienvenida con un acuario de alegres y coloridos peces que refleja la luz por toda la vivienda.

El mejor aliado de esta reforma sin duda, la estantería.

Do you have a project? We listen you