Quiero una casa bonita y funcional. A la orden.
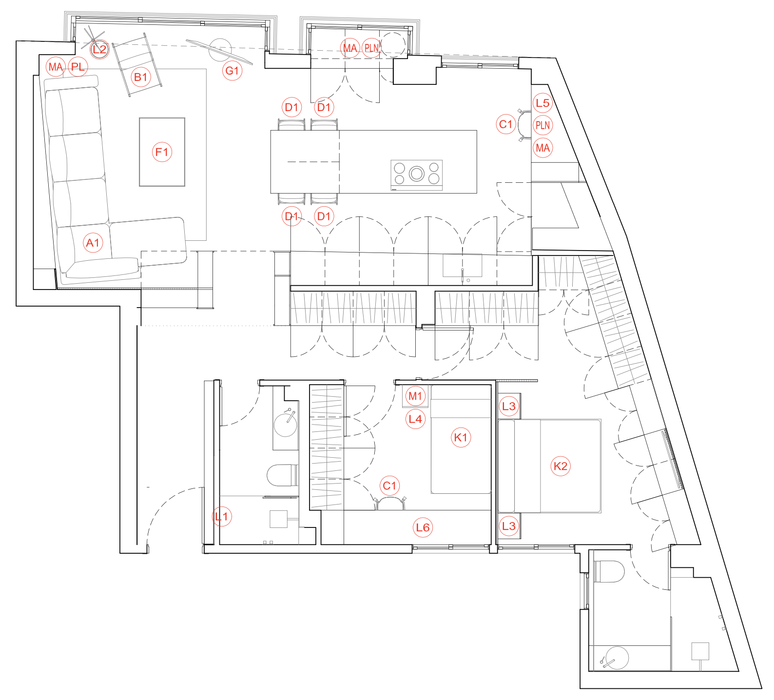
Con esas dos ideas tan claramente expresadas, fue fácil dividir la casa en zona de día y zona de noche, y maximizar ambas áreas. Todo está en un único espacio que sirve para cocinar, trabajar, comer, ver la tv, escuchar música, disfrutar del paisaje por las ventanas, en definitiva, la posibilidad de hacer todo al mismo tiempo, sin perderse nada.
A partir de ahí los materiales, el mobiliario y la iluminación, al servicio de la nueva organización.
Suelos de porcelanito de gran formato, acorde con la continuidad de los espacios únicos, madera de roble claro para dar luminosidad y calidez a los espacios, separadores de palillería de madera para privatizar y filtrar las vistas desde el acceso de la vivienda al salón, mobiliario de cocina contrastado en negro y madera, buscando siempre el equilibrio entre modernidad y calidez.
Toda la zona de día disfruta de unas vistas privilegiadas a uno de los espacios urbanos verdes más bonitos de la ciudad. La zona de noche se vuelca sigilosamente a espacios de luz y ventilación más tranquilos y funcionales.