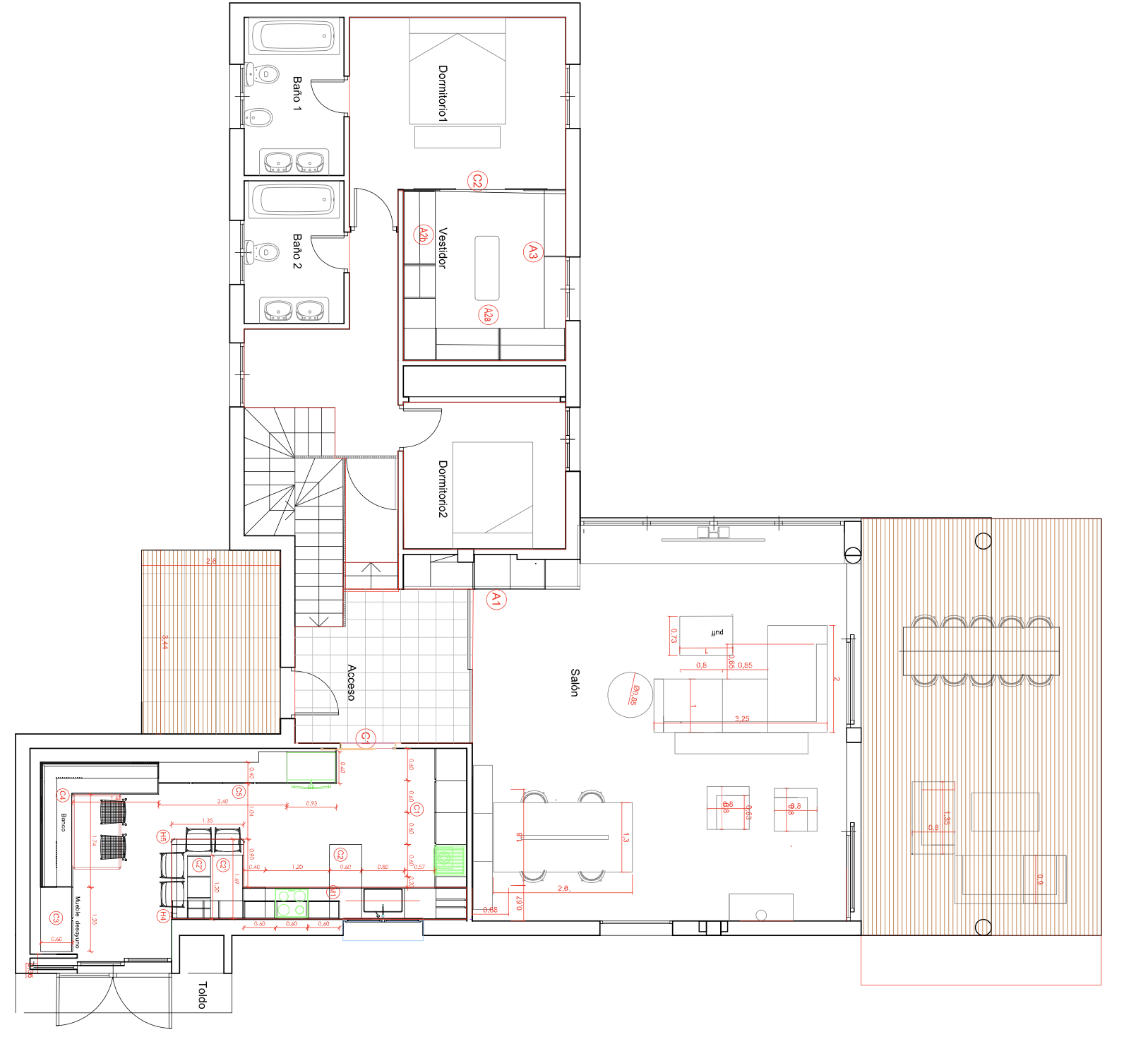
Vivir en la tierra y tocar el cielo, es lo más parecido en esta reforma en el campo de Elche.
Con unas necesidades muy claras de ampliar el salón hacia el porche, que se adentra en la vegetación de una parcela ya consolidada.
Sentarse delante de un ventanal que reza a un jardín exuberante.
Rodearse de tradición con materiales nobles, amables, cálidos y naturales como la madera, el suelo de moqueta de fibras de algas. Todo vive y respira en este salón, e invita a la meditación y a la reflexión, a parar el tiempo, a disfrutar del exterior desde la comodidad del interior.
El azul predomina en todos los detalles. La cerámica tradicional azul grisáceo se despliega como un acordeón por las paredes de la cocina , que ha preferido mantenerse al margen del salón, ampliando sus muros para poder descansar, comer y ¿por qué no? estudiar y trabajar en un espacio que podría ser perfectamente una biblioteca o refectorio.
Acompañado por unos mosaicos hidráulicos que reciben y cosen los distintos niveles y pavimentos de madera y fibra de algas.
Una escalera abierta forrada en madera invita a bajar al semisótano donde se encuentra lo más sagrado de esta casa. Su temperatura fresca en verano y cálida en invierno te atrapa. Su chimenea hipnotiza con el crepitar de la leña.
En el Carmen de San Miguel, se respira mucha paz y armonia.