fbpx
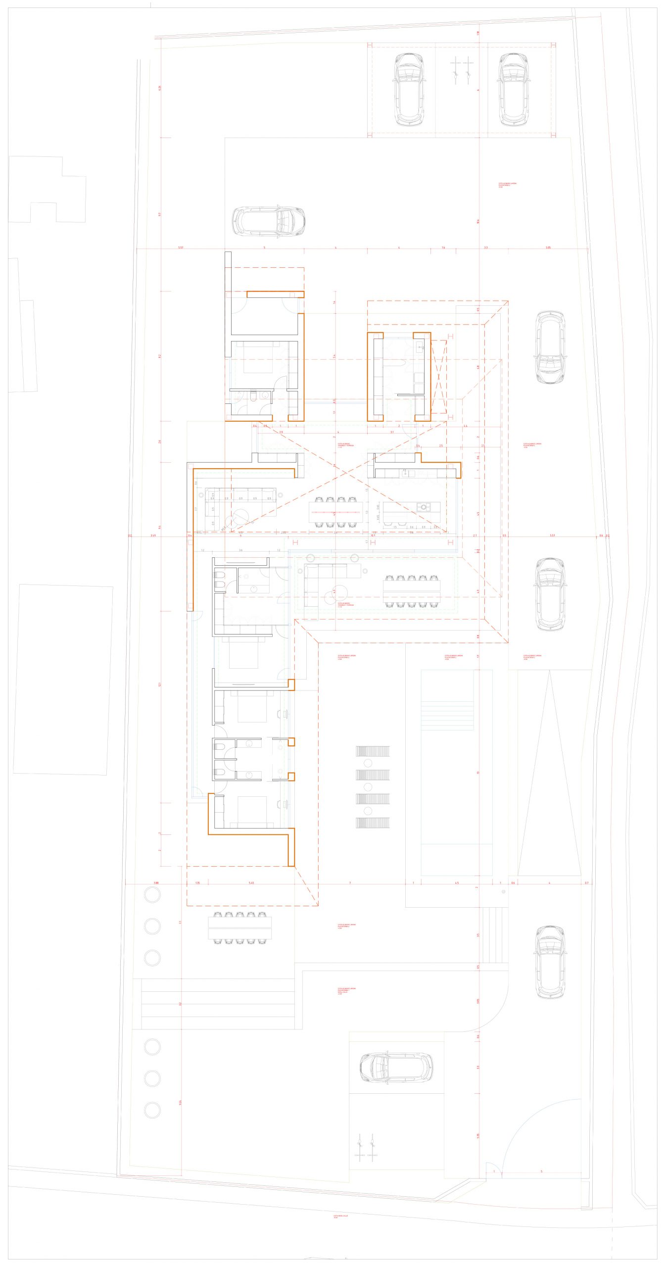
Casa Cal

Vivienda unifamiliar de estilo contemporáneo y natural

Una vivienda en una sola planta organizada en forma de L alrededor de una gran piscina y rodeada de grandes plantas y altas palmeras por todo su perímetro para mantener la privacidad y tener la sensación de estar en un jardin privado y centenario.

Un estilo natural y mediterráneo, de lineas y geometria contundentes, junto a la utilización y combinación de piedras, maderas y hormigón abujardado, crean unos espacios y sensaciones muy atractivas y sugerentes, y transmiten una sensación de tranquilidad en cada rincón de la casa.

Do you have a project? We listen you