fbpx
ASTILLEROS

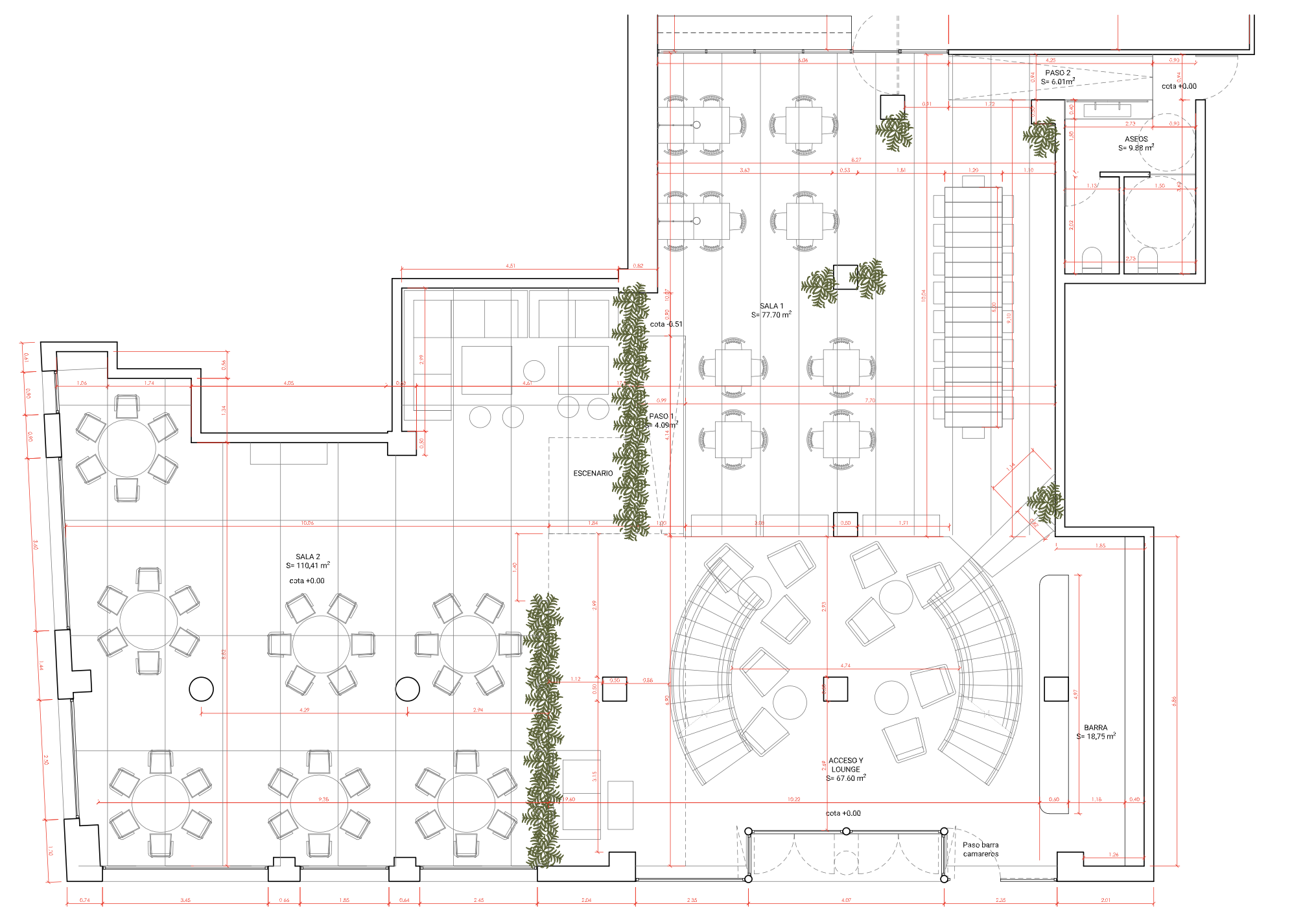
Proyecto de reforma e interiorismo para restaurante junto al puerto de Santa Pola

En este restaurante, el cliente busca crear un local donde conviven la gastronomía local, la decoración y la música para crear un ambiente capaz de atraer a una mayor diversidad de clientes. Distintos ambientes para ofrecer una comida relajado o simplemente un aperitivo en barra.

La principal actuación con la que se pretendió dotar de un nuevo flujo de gente al local, fue abriendo y exponiendo el interior al máximo al exterior, de modo que desde dentro la sensación fuera casi como estar en la plaza en que el local se ubica, generando desde fuera una imagen muy atractiva.

El interior se protege del soleamiento mediante unos toldos en fachada que ayudan a crear una imagen más actual y atractiva del local.

Colores suaves, tonos ocres y teja, contrastan con el verde de las plantas para generar un ambiente confortable. La utilización en la decoración y mobiliario de elementos cerámicos tradicionales, ratán, enea o maderas crean en conjunto espacios muy agradables y ricos en detalles, al mismo tiempo que su distinta configuración ayuda a diferenciar ambientes.

Do you have a project? We listen you